Bien Avec Vue

Appartements à l'achat
Achat
3 mois
17

Appartement - Vue dégagée - Sainte-Maxime - Provence-Alpes-Côte d’Azur - France - vente appartement de prestige 3 Pièce(s) - 3 pièces - 2 chambres - 70.00 m² - Bien Avec Vue

1 050 000 €
Vue dégagée
70.00
m².
3
pièces
2
chambres

Description

**** EXCLUSIVITÉ SOUS PROMESSE DE VENTE JUIN 2025 ****
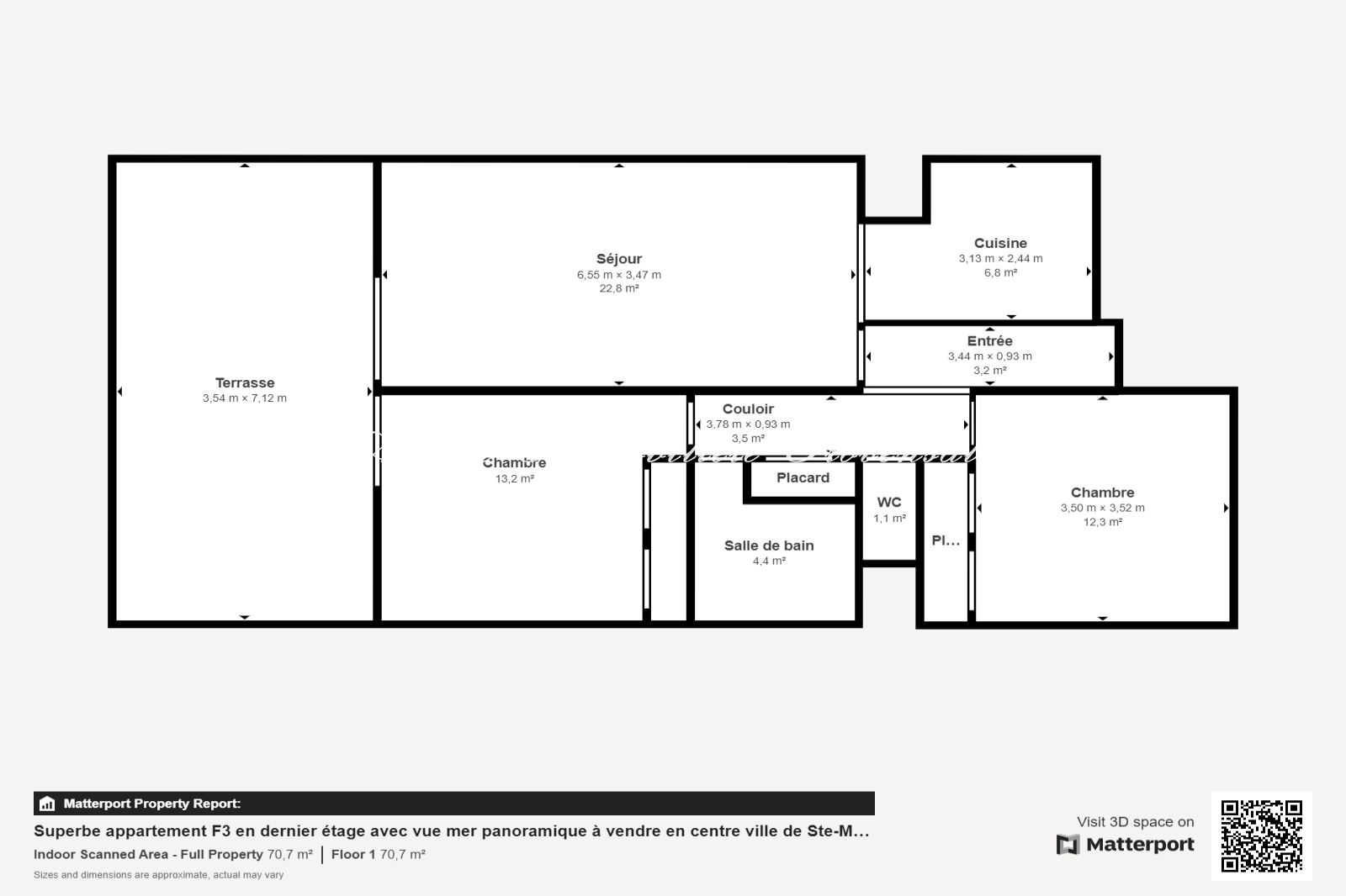
Unique sur le marché ! Découvrez cet appartement F3 avec une grande terrasse, situé au dernier étage d’une résidence avec ascenseur en plein centre-ville de Sainte-Maxime. Profitez d’une vue panoramique époustouflante sur le Golfe et le Village de Saint-Tropez.
Cet appartement de 70 m², complété par une magnifique terrasse de 25 m² face à la mer, se compose de :
Une entrée
Un séjour salon climatisé avec vue sur la mer
Une cuisine aménagée semi-ouverte
Deux chambres, dont une avec climatisation et vue sur la mer
Une salle d’eau
Un WC
Un parking privatif est disponible dans une cour sécurisée au pied de la résidence. L’appartement est équipé de double vitrage.
Situation exceptionnelle ! Unique sur le marché !
Charges annuelles : 2 200 ¤ (soit 184 ¤ par mois).
Pour plus d’informations sur les risques auxquels ce bien est exposé, consultez le site Géorisques.
Visite virtuelle 3D disponible.
**** EXCLUSIVITÉ SOUS PROMESSE DE VENTE JUIN 2025 ****


Commodités

  • Ascenseur
  • Terrasse
  • Parking

Location

Sainte-Maxime

Afficher le numéro de téléphone +33 (0)4 94 96 00 18



     

     

    Vos informations personnelles seront traitées par BienavecVue.com conformément à notre Politique de confidentialité. Elles seront utilisées pour vous proposer des annonces et services, et vous tenir informés de nos actualités. Si vous ne souhaitez plus recevoir d’informations ou d’offres, vous pouvez vous désabonner à tout moment. Vous pouvez également demander d’accéder à vos données personnelles, de les rectifier ou de les supprimer.

    Severini Habitat