Terrain - Vue dégagée - Sancey le long - Bourgogne-Franche-Comté - France - Terrain - NR pièces - NR chambres - 1105 m² - Bien Avec Vue
43 000 €
Vue dégagée
1105
m².
NR
pièces
NR
chambres
Description
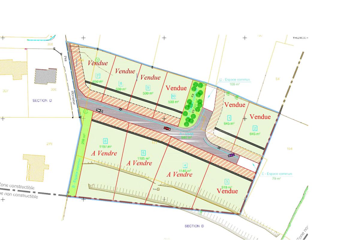
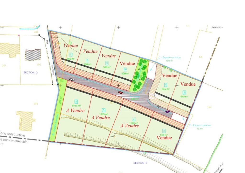
REF42970/1524 : Dans un lotissement en impasse, venez découvrir ce terrain viabilisé de 1105 m² ( lot n°5 sur le plan) idéalement situé en bordure de village avec vue imprenable . Plus que 3 lots disponibles, à découvrir sans tarder ! Contactez Pauline JOUILLEROT au 07.78.40.03.12. Pauline JOUILLEROT (EI) Agent Commercial – Numéro RSAC : 953 724 796 – .
Commodités
- Ascenseur
- Piscine
