Appartement - Vue fleuve - Toulouse - Occitanie - France - T3 - 59m ² - 3 pièces - 2 chambres - 59 m² - BienAvecVue
390000 €
Vue fleuve
59
m².
3
pièces
2
chambres
Description
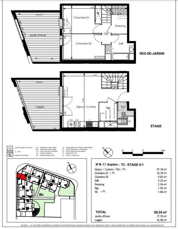
Appartement T3 rare et unique, situé dans le quartier prisé de Saint-Cyprien, offrant une vue imprenable sur la Garonne et le Théâtre du même nom. Appartement en duplex avec terrasse et jardin d’hiver, prestations de qualités, pièce de vie de 27 m², espace de rangement et wc au RDC. L’étage se compose de deux chambres dont une avec dressing et une salle de bain. Cet appartement est vendu avec une place de parking en sous-sol. Points forts : – Emplacement rare dans un quartier historique recherché – Proximité des marchés de plein air et couverts, de la Prairie des Filtres, et de l’hyper centre – Certification NF HABITAT garantissant la qualité de construction – Frais de notaire réduits – Possibilité de prêt à taux zéro
Commodités
- Ascenseur
- Balcon / Loggia
- Piscine
- Terrasse
- Cave / Cellier
- Jardin
- Parking
