Appartement à vendre à La londe-les-maures
T2 cabine avec ascenceur vue mer et jardin Baie des Iles
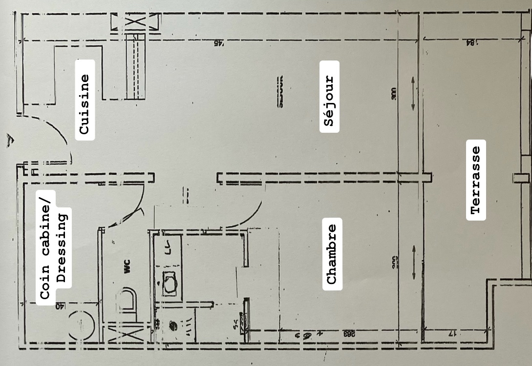
Description
Rare sur le secteur, ce très joli T2 cabine avec une vue mer, terrasse de 11m² environ, dans une résidence de standing sécurisée. Cet appartement, situé au 2ème étage AVEC ASCENCEUR (très rare en front de mer) est composé d’une entrée, d’une cuisine ouverte sur le séjour de 22m² environ ; grandes baies vitrées coulissantes pour accéder à la terrasse avec vue mer et jardin. Une belle chambre avec une salle de douche, un wc indépendant, et un dressing (ou coin cabine) complètent l’ensemble. Proche du port avec embarcadère pour les Iles d’or et plage à 50m sans route à traverser. Vendu équipé avec modernité. Cette résidence de 2012 offre une sécurité optimale : vigic, codes d’accès, gardien… Tout ce qu’il faut pour se sentir en sécurité. Un garage fermé en sus (3m/5m), en sous-sol complète ce bien (31500€). Idéal pour vacances en bord de mer ou investissement locatif pour 4-6 personnes. Charges de copropriété : 100€/mois. Foncière : 929€. DPE : C – A. Le bien se trouve dans la commune de LA LONDE-LES-MAURES, Côte d’Azur Varoise, entre HYERES et LE LAVANDOU, à 3km du centre-ville (plusieurs écoles, commerces… centre-ville actif toute l’année). Les transports en commun, gare et aéroport de Hyères sont implantés à moins de 10 minutes. Conformément aux nouvelles réglementations, les informations sur les risques auxquels ce bien serait exposé sont disponibles sur le site Géorisques.
Commodités
- Gardien
- Ascenseur
- Terrasse
- Garage
- Digicode
- Accès handicapés
Localisation
Afficher le numéro de téléphone +33 6 18 00 17 83
