Appartement - Vue monument - Reims - Grand Est - France - Appartement à rénover centre ville - 5 pièces - 4 chambres - 147 m² - BienAvecVue
Description
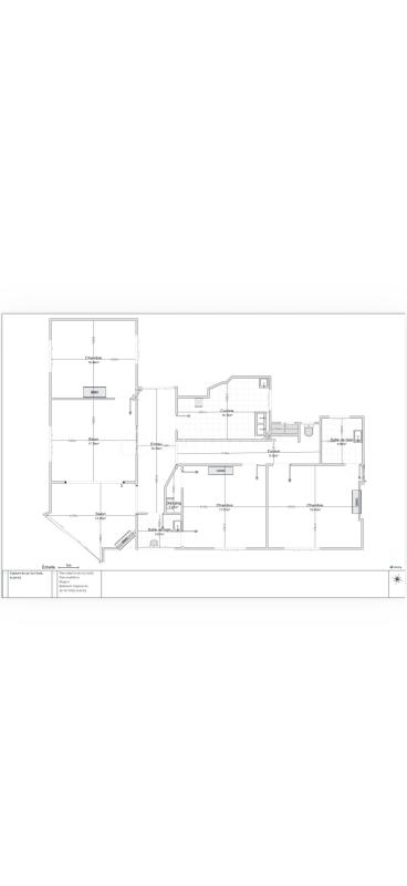
Appartement 122 m² à rénover – Vue panoramique sur la Cathédrale de Reims. Un devis est établi d’un montant de 104000 euros comprenant la rénovation totale du bien. Fenêtres double vitrage (l’intégralité du bien). Respect des obligations ‘bâtiments de France’. Peinture persiennes et repose de celles-ci. Enduit et peinture murs et plafonds. Démontage, peinture et remontage des radiateurs d’époque. Peinture boiseries intérieures. Ponçage et vitrification du plancher. Plomberie. Électricité. Pose de 2 salles de bain et d’une cuisine équipée. Reims – centre – 3e étage avec ascenseur. Rare sur le marché : vaste appartement de 122 m² à rénover entièrement, offrant une vue exceptionnelle sur la Cathédrale de Reims. Situé dans un immeuble de standing avec ascenseur, ce bien lumineux dispose actuellement d’un double séjour, d’une cuisine indépendante, de trois chambres (dont deux avec salle de bain), ainsi que d’une chambre de service de 20 m² au 5e étage. Cave et parking privatif sécurisé complètent ce bien d’exception. Emplacement recherché, volumes généreux et fort potentiel : une opportunité unique de créer votre appartement sur mesure en plein centre-ville de Reims. Prix du bien : 449 900,00 € Prix du bien hors honoraires : 426 000,00 € Honoraires TTC : 5,61 % Les honoraires d’agence sont à la charge de l’acquéreur. À propos de la copropriété : Pas de procédure en cours. Nombre de lots : 18 Charges prévisionnelles annuelles : 2 099,00 € À propos des performances énergétiques : Date de réalisation du diagnostic énergétique : 30/09/2025 Score DPE : 352 kWhEP/m²/an Score GES : 77 kgepCO2/m²/an Montant estimé des dépenses annuelles d’énergie pour un usage standard : entre 4470,00 € et 6080,00 € par an. Prix moyens des énergies indexés sur l’année 2025 (abonnements compris). Les informations sur les risques auxquels ce bien est exposé sont disponibles sur le site Géorisques.
Commodités
- Ascenseur
- Balcon / Loggia
- Terrasse
- Cave / Cellier
- Parking
