Appartement à vendre à Bormes les mimosas
APPARTEMENT 3 pièces 183M² avec terrasse -- Possibilité de redistribution !
Description
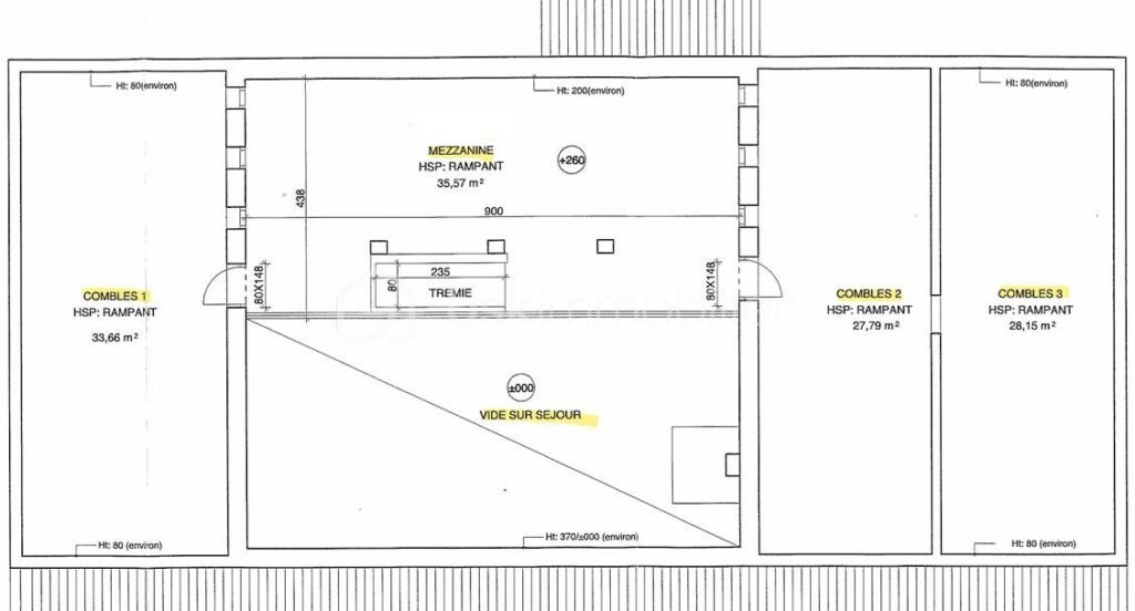
A 5 min des plages, au calme, vue dégagée, exposition sud. Accès de plain pied pour cet appartement 3 pièces à rénover (et/ou redistribuer) de 183m² (160m² carrez) avec terrasse fermée + combles. Ce bien, accessible par un hall d’entrée avec wc, se distribue comme suit : accès par un hall d’entrée, salon/séjour avec mezzanine (2nde chambre) totalisant 80m² ouvrant sur la terrasse de 34m², cuisine de 15m² et coin cellier, suite parentale de 32m² (chambre/sdb avec wc/dressing) ouvrant également sur la terrasse. Vous profitez d’un cadre arboré, d’une vue dégagée, et des avantages d’une petite copropriété (maison divisée en 7 lots). La pièce de vie bénéficie de très belles hauteurs sous plafond et d’une cheminée. Les combles exploitables sont accessibles de chaque côté de la mezzanine. Ce haut de villa à fort potentiel peut être entièrement repensé. Prix du bien : 510 000,00 €. Les honoraires sont à la charge du vendeur. À propos de la copropriété : pas de procédure en cours. Nombre de lots : 1. Charges prévisionnelles annuelles : 300,00 €. À propos des performances énergétiques : date de réalisation du diagnostic énergétique : 21/08/2023. Score DPE : 174 kWhEP/m²/an. Score GES : 7 kgepCO2/m²/an. Montant estimé des dépenses annuelles d’énergie pour un usage standard : entre 2290,00 € et 3130,00 € par an. Prix moyens des énergies indexés sur l’année 2021 (abonnements compris). Les informations sur les risques auxquels ce bien est exposé sont disponibles sur le site Géorisques.
Commodités
- Balcon / Loggia
- Piscine
- Terrasse
- Parking
