Appartement - Vue parc - La Londe-les-Maures - Provence-Alpes-Côte d’Azur - France - T3 avec terrasse sud et garage - LA LONDE - CENTRE VILLE - 3 pièces - 2 chambres - 69.23 m² - BienAvecVue
Description
Dans une petite copropriété de standing, un magnifique appartement avec ascenseur, exposition sud en vue dégagée
Un confort assuré par les dernières normes, la climatisation, portes vitrées en aluminium, terrasse spacieuse sans vis à vis
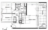
Un beau volume de vie composé d’un très beau séjour/cuisine donnant sur une terrasse de plus de 16m², deux chambres, une salle de douche et WC indépendant
Frais de notaire offerts. Garage disponible en sus à 30 000 €
Le bien se trouve dans la commune de LA LONDE-LES-MAURES, Côte d’Azur Varoise, entre HYERES et LE LAVANDOU, à 3 km du centre-ville (plusieurs écoles, commerces, centre-ville actif toute l’année). Les transports en commun, la gare et l’aéroport de Hyères sont implantés à moins de 10 minutes.
Commodités
- Ascenseur
- Terrasse
- Garage
- Climatisation
- Accès handicapés
Location
Afficher le numéro de téléphone 06 18 00 17 83

