Maison à vendre à Caluire et cuire
Propriété de caractère avec vue panoramique
Description
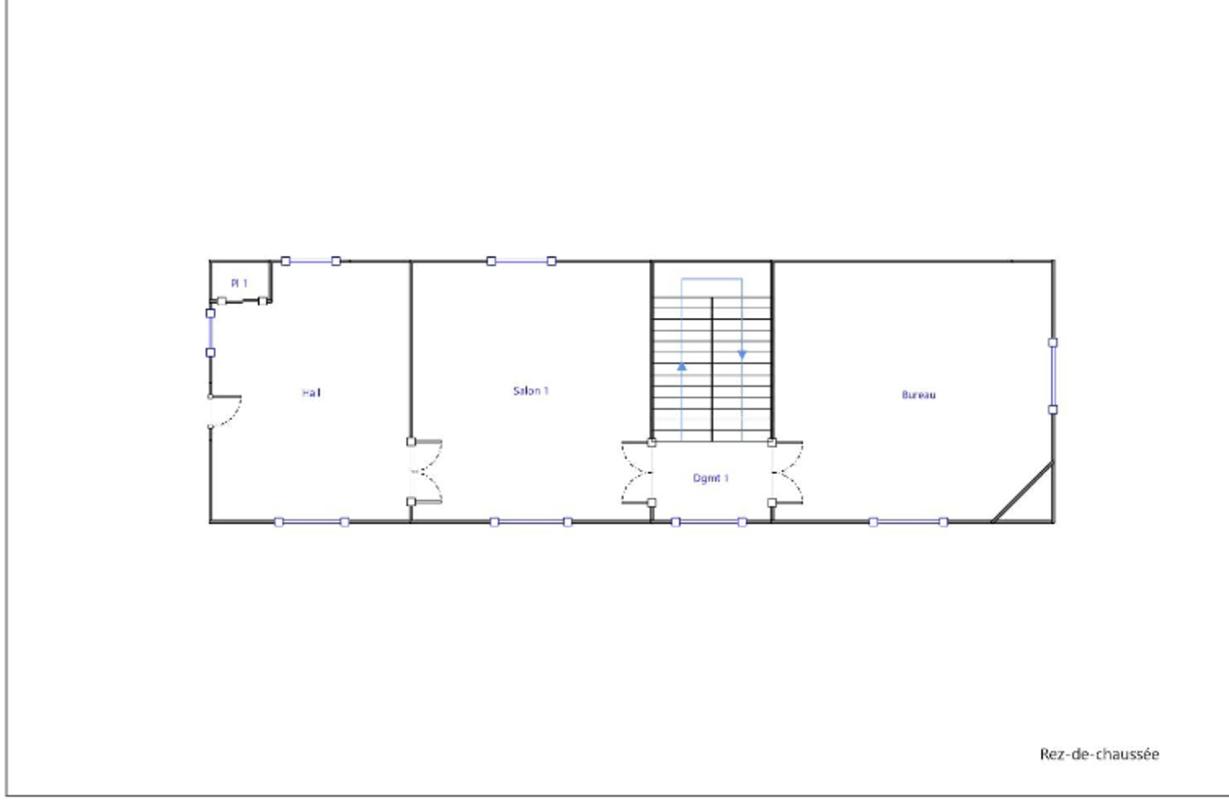
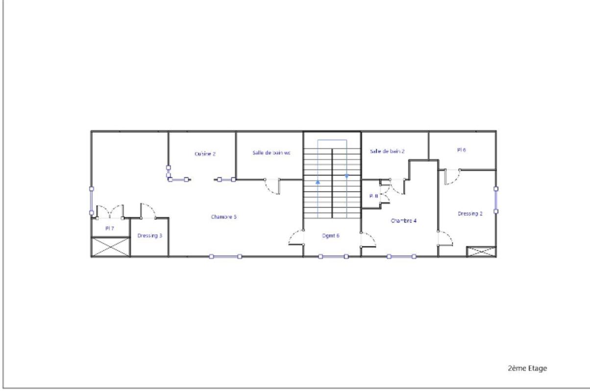
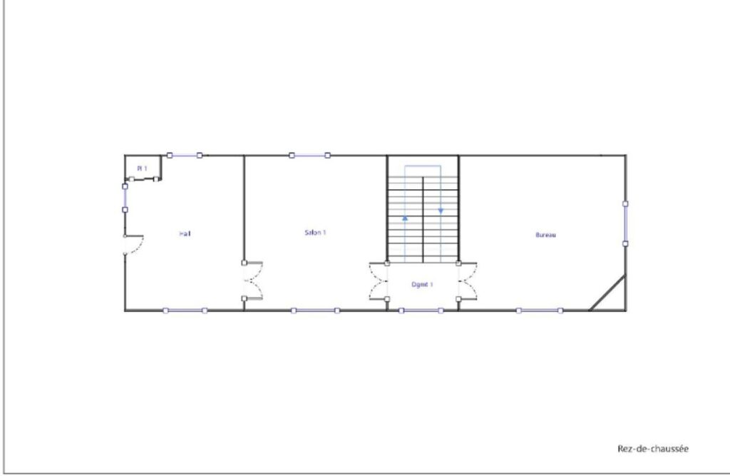
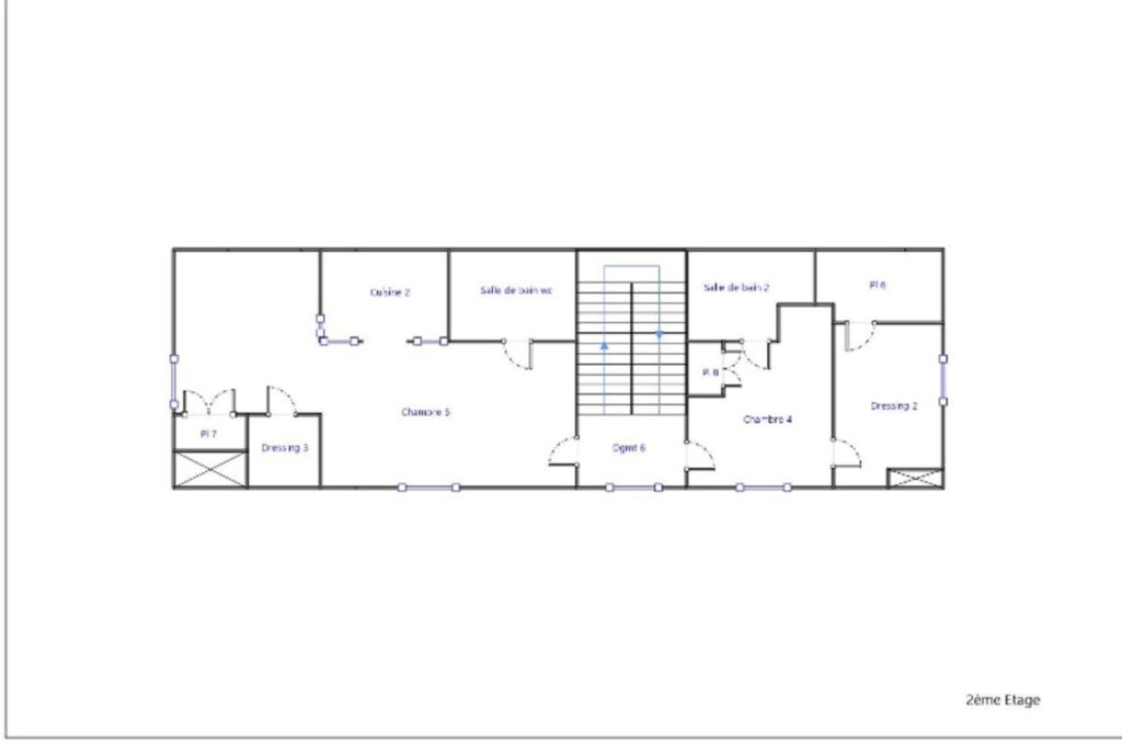
Sur les hauteurs de Caluire-et-Cuire, au calme et tout en discrétion, cette élégante propriété de la fin du XIXe siècle déploie environ 426 m² dans une position dominante, offrant une vue saisissante sur Lyon et le Rhône, véritable fil conducteur du lieu. Dès les premiers instants, la maison impose une présence rare, faite de lumière, de perspectives ouvertes et d’une atmosphère à la fois paisible et inspirante. Les volumes, généreux et authentiques, s’organisent autour d’un escalier ancien au caractère affirmé, distribuant harmonieusement les différents niveaux. Les espaces de vie, baignés de soleil grâce à une exposition idéale, s’ouvrent largement sur l’extérieur et prolongent le regard vers un panorama vivant qui évolue au fil des heures et des saisons. La cuisine, les pièces de réception et la véranda composent un ensemble chaleureux, propice à la fois à la convivialité et à la contemplation. L’ensemble comprend quatre chambres, un bureau bénéficiant d’une vue remarquable, ainsi qu’un grand espace studio au 4ème niveau. Édifiée sur un terrain paysager d’environ 1 730 m², la propriété offre différents espaces de vie extérieurs et permet d’envisager l’implantation d’une piscine dans un cadre privilégié. Trois ateliers, deux abris de jardin, une vaste chaufferie ainsi que deux belles caves d’environ 30 m² viennent compléter ce bien aux multiples possibilités. Une modernisation permettra de révéler toute la noblesse de cette demeure et d’en sublimer le potentiel, dans un équilibre subtil entre patrimoine et lignes contemporaines. À seulement quelques minutes de Lyon, cette propriété confidentielle s’adresse à une clientèle sensible aux lieux singuliers, en quête d’un cadre de vie rare où l’élégance du temps et la force du paysage créent une expérience unique.
Commodités
- Piscine
Localisation
Afficher le numéro de téléphone +33 9 82 58 06 80
